Parker Drive
Leicester, LE4
Per Month £4,000
<< Back to search
- Property Reference: 33170365
- Large Warehouse
- Off Road Parking Available
- Delivery Bay
- 2 Offices
- Reception Area
- Plenty of Storage
- Central Location
- Roughly 7000 sqft
- Ground Floor
Description
Seths are proud to market this Industrial Unit/Warehouse under "Class B8 – Storage or Distribution” on Parker Drive within close proximity of Leicester City Centre.
The premises used to be used as a Printing Firm.
Upon entering the Premises there is parking for 4 Cars and also there is a Loading Bay at the back of the premises.
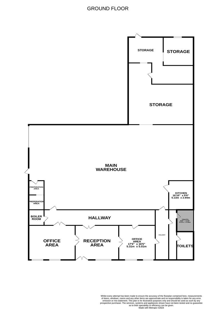
The Main Building opens into an Open Waiting/Reception Area. There are also 2 Offices either side of the Waiting Area.
There is a Hallway, which then leads to the large Open Plan Warehouse, which has a Kitchenette attached, access for Toilet and plenty of further Storage behind.
V.A.T applicable on the Rent and Deposit.
Business Rates of around £8500 per annum.
*A Non-Refundable Agency Fee of £399.00 + V.A.T to pay for Company Checks/References.
The premises used to be used as a Printing Firm.
Upon entering the Premises there is parking for 4 Cars and also there is a Loading Bay at the back of the premises.
The Main Building opens into an Open Waiting/Reception Area. There are also 2 Offices either side of the Waiting Area.
There is a Hallway, which then leads to the large Open Plan Warehouse, which has a Kitchenette attached, access for Toilet and plenty of further Storage behind.
V.A.T applicable on the Rent and Deposit.
Business Rates of around £8500 per annum.
*A Non-Refundable Agency Fee of £399.00 + V.A.T to pay for Company Checks/References.
Floor Plan
EPC
EPC being prepared